arrow_back Voltar à matéria
Fotos: Horóscopo Chinês 2026: como ter sorte, dinheiro e clareza no Ano do Cavalo de Fogo? O segredo do Feng Shui para transformar a energia do seu lar, segundo arquitetas
Publicado em 29 de dezembro de 2025 às 12:41
1/8
Veja + após o anúncio
2/8
Horóscopo Chinês 2026: como ter sorte, dinheiro e clareza no Ano do Cavalo de Fogo? O segredo do Feng Shui para transformar a energia do seu lar, segundo arquitetas
Horóscopo Chinês 2026: como ter sorte, dinheiro e clareza no Ano do Cavalo de Fogo? O segredo do Feng Shui para transformar a energia do seu lar, segundo arquitetas
3/8
'O cavalo representa movimento, liberdade e capacidade de seguir em frente. Quando combinado ao elemento Fogo, essa energia se torna ainda mais vibrante e expansiva', explica Belisa Mitsuse, sócias do BTliê Arquitetura. © Shutterstock, vetre
'O cavalo representa movimento, liberdade e capacidade de seguir em frente. Quando combinado ao elemento Fogo, essa energia se torna ainda mais vibrante e expansiva', explica Belisa Mitsuse, sócias do BTliê Arquitetura.
4/8
O segredo do Feng Shui para transformar a energia de casa, segundo arquitetas, é fazer pequenas adaptações © Made with Google AI
O segredo do Feng Shui para transformar a energia de casa, segundo arquitetas, é fazer pequenas adaptações
5/8
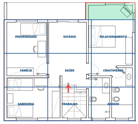
Feng Shui valoriza a descoberta da área do sucesso no imóvel; sobreponha esse diagrama ao mapa de sua casa © Divulgação, Multiverso Comunicação/BTliê Arquitetura
Feng Shui valoriza a descoberta da área do sucesso no imóvel; sobreponha esse diagrama ao mapa de sua casa
6/8
O Feng Shui é a especialidade das arquitetas Belisa Mitsuse (Bel) e Estefânia Gamez (Tef), do  BTliê Arquitetura © Divulgação, Multiverso Comunicação/BTliê Arquitetura
O Feng Shui é a especialidade das arquitetas Belisa Mitsuse (Bel) e Estefânia Gamez (Tef), do BTliê Arquitetura
7/8
No ano regido pelo Fogo, faz diferença criar ambientes que reforcem entusiasmo, autoestima e clareza de propósito. 'Pequenas escolhas no lar podem ajudar a canalizar esse impulso natural do ciclo', afirma a arquiteta Estefânia Gamez.
No ano regido pelo Fogo, faz diferença criar ambientes que reforcem entusiasmo, autoestima e clareza de propósito. 'Pequenas escolhas no lar podem ajudar a canalizar esse impulso natural do ciclo', afirma a arquiteta Estefânia Gamez.
8/8
O importante para 2026, segundo as arquitetas, é criar um cenário que convide à ação, mas que mantenha conforto e equilíbrio.
O importante para 2026, segundo as arquitetas, é criar um cenário que convide à ação, mas que mantenha conforto e equilíbrio.
Tendências
Todos os famosos
Sobre o mesmo tema
Ano Novo Chinês 2026: 3 rituais para fazer antes do ano do Cavalo de Fogo e atrair sorte, dinheiro e as melhores energias
Ano Novo Chinês 2026: 3 rituais para fazer antes do ano do Cavalo de Fogo e atrair sorte, dinheiro e as melhores energias
2 de janeiro de 2026
Este signo será o mais afortunado do Horóscopo Chinês em 2026: terá maré de sorte e avanços profissionais no Ano do Cavalo de Fogo
Este signo será o mais afortunado do Horóscopo Chinês em 2026: terá maré de sorte e avanços profissionais no Ano do Cavalo de Fogo
29 de dezembro de 2025
Ano do Cavalo de Fogo no Horóscopo Chinês 2026: quais são os 3 signos com mais sorte nos próximos meses?
Ano do Cavalo de Fogo no Horóscopo Chinês 2026: quais são os 3 signos com mais sorte nos próximos meses?
30 de dezembro de 2025
Unhas de janeiro 2026: no Ano do Cavalo de Fogo no Horóscopo Chinês, essas 18 fotos de nail arts em vermelho vão te trazer sorte e prosperidade
Unhas de janeiro 2026: no Ano do Cavalo de Fogo no Horóscopo Chinês, essas 18 fotos de nail arts em vermelho vão te trazer sorte e prosperidade
7 de janeiro de 2026
Top famosos
Selton Mello
chevron_right
Virgínia Fonseca
Virgínia Fonseca
chevron_right
Zara
chevron_right
Shakira
chevron_right
Xamã
chevron_right
Neymar
Neymar
chevron_right
Notícias similares
Este signo será o mais afortunado do Horóscopo Chinês em 2026: terá maré de sorte e avanços profissionais no Ano do Cavalo de Fogo
Este signo será o mais afortunado do Horóscopo Chinês em 2026: terá maré de sorte e avanços profissionais no Ano do Cavalo de Fogo
29 de dezembro de 2025
Sorte ou caos? Horóscopo Chinês 2026: saiba quais signos vão brilhar (e quais devem se cuidar!) no Ano do Cavalo de Fogo
Sorte ou caos? Horóscopo Chinês 2026: saiba quais signos vão brilhar (e quais devem se cuidar!) no Ano do Cavalo de Fogo
26 de dezembro de 2025
Ano do Cavalo de Fogo no Horóscopo Chinês 2026: quais são os 3 signos com mais sorte nos próximos meses?
Ano do Cavalo de Fogo no Horóscopo Chinês 2026: quais são os 3 signos com mais sorte nos próximos meses?
30 de dezembro de 2025
Como será 2026 para seu signo? Marte trará um novo ano 'intenso e acelerado' e vai mexer com as emoções; confira!
Como será 2026 para seu signo? Marte trará um novo ano 'intenso e acelerado' e vai mexer com as emoções; confira!
24 de dezembro de 2025
Horóscopo Chinês 2026: no Ano do Cavalo de Fogo, qual será o mês com mais sorte, oportunidades, dinheiro e mudanças?
Horóscopo Chinês 2026: no Ano do Cavalo de Fogo, qual será o mês com mais sorte, oportunidades, dinheiro e mudanças?
1 de janeiro de 2026
Se você tiver uma destas 3 idades em 2026, poderá ficar rico: é o que revela o Horóscopo Chinês no Ano do Cavalo de Fogo
Se você tiver uma destas 3 idades em 2026, poderá ficar rico: é o que revela o Horóscopo Chinês no Ano do Cavalo de Fogo
6 de janeiro de 2026
Últimas Notícias
O que assistir na Netflix: 3 filmes em que o tempo joga contra
O que assistir na Netflix: 3 filmes em que o tempo joga contra
10:01
Lançado em 1987, este perfume da Água de Cheiro traz um aroma misterioso e sensual que evoca a atmosfera do filme 'Dirty Dancing'
Lançado em 1987, este perfume da Água de Cheiro traz um aroma misterioso e sensual que evoca a atmosfera do filme 'Dirty Dancing'
09:36
'Todos vão pagar': filho de Deolane Bezerra, Kayky expõe desabafo forte após prisão da mãe e faz dura promessa
'Todos vão pagar': filho de Deolane Bezerra, Kayky expõe desabafo forte após prisão da mãe e faz dura promessa
09:19
Da criança fofa em 'Além do Tempo' ao destaque no cinema: aos 25 anos, Klara Castanho completa 2 décadas de carreira com filme ambientado em 1985 e mais projetos no streaming
Da criança fofa em 'Além do Tempo' ao destaque no cinema: aos 25 anos, Klara Castanho completa 2 décadas de carreira com filme ambientado em 1985 e mais projetos no streaming
09:09
Últimas Notícias